Co zrobić, gdy centrala nie mieści się w maszynowni?
Wstęp
Projektując nowy obiekt od podstaw zazwyczaj projektant ma do dyspozycji wystarczająco dużo miejsca, żeby zmieścić centrale wentylacyjne i kanały. Ma także możliwości wyboru centrali dachowej, wewnętrznej, czy ewentualnie podwieszanej, która zmieści się w przestrzeni pomiędzy stropem a sufitem podwieszanym.
Jednak w modernizowanych obiektach elastyczność pod tym względem jest znacznie niższa, lub też nie ma jej wcale i na pierwszy rzut oka wydaje się, że w pewnych przypadkach nie jest możliwe wykonanie dobrego projektu instalacji wentylacyjnej.
Co w takiej sytuacji zrobić?
W dalszej części artykułu zobaczysz przykład projektu wykonanego przy dużym współudziale naszej firmy, którego nikt nie chciał się podjąć, bowiem wydawał się po prostu niemożliwy do zrealizowania.
Projekt wentylacji w za małej maszynowni – co zrobić ?
Gdy staję przed zadaniem pomocy klientowi w podobnej sytuacji przypomina mi się pewna anegdota…
Pewien stary profesor prowadził kurs dla grupy szefów wielkich koncernów amerykańskich na temat skutecznego planowania czasu.
Profesor popatrzył na każdego uczestnika kursu z osobna, a następnie powiedział: „Przeprowadźmy doświadczenie”.
Następnie wyjął spod biurka kilkulitrowy szklany dzban i postawił przed sobą, po czym wyjął kilkanaście kamieni wielkości tenisowych piłek i powoli jeden po drugim włożył do dzbana.
Gdy dzban był wypełniony i niemożliwie było już dołożenie kolejnego kamienia stary profesor zapytał: – Czy dzban jest pełen?
– Taaaak – wszyscy prawie jednogłośnie odpowiedzieli.
– Na pewno? – zapytał profesor?
Pochylił się następnie i wyjął spod biurka naczynie ze żwirem. Wsypał delikatnie żwir na kamienie, potrząsnął dzbanem, znów dosypał żwiru, aż żwir zajął miejsce między kamieniami, aż do dna dzbana. I znów zapytał:
– Czy dzban jest pełen?
Tym razem studenci zaczęli powoli rozumieć… jeden z nich odpowiedział: „prawdopodobnie nie”.
W odpowiedzi profesor pochylił się znów i wyjął spod biurka kolejne naczynie w którym był piasek. Wsypał powoli piasek do dzbana i znów zapytał:
– Czy dzban jest pełen?
Zapanowało milczenie.
Po chwili jeden z nich odpowiedział:
– teraz chyba tak…
Profesor więc znów się pochylił, wyjął spod biurka butelkę wody i wlał powoli wodę do dzbana opróżniając butelkę do końca, po czym zapytał:
– Jaką prawdę ukazuje nam to doświadczenie?
Najbardziej odważny ze słuchaczy, odpowiedział:
– To pokazuje, ze nawet jeśli nasz kalendarz jest całkiem zapełniony, jeśli naprawdę chcemy, możemy zaplanować jeszcze więcej spotkań, jeszcze więcej rzeczy do zrobienia.
– Nie. To nie o to chodziło – odpowiedział profesor.
Wielka prawda, którą przedstawia nam to doświadczenie jest następująca: Jeśli nie włożymy kamieni jako pierwszych do dzbana, później nie będzie to możliwe.
Zapanowało głębokie milczenie, każdy uświadomił sobie oczywistość tego stwierdzenia.
Profesor zapytał:
– Co stanowi kamienie w waszym życiu? Wasze zdrowie?, Praca?, Rodzina?, Przyjaciele?, Realizowanie marzeń?, Uczenie się?, Odpoczywanie?, A może jeszcze cos innego?
Zapamiętajcie więc, że najważniejsze jest włożyć swoje KAMIENIE jako pierwsze do dzbana swojego życia, w przeciwnym wypadku ryzykujemy przegrać własne życie. Jeśli damy pierwszeństwo drobiazgom (żwir, piasek), wypełnimy życie drobiazgami i nie będziemy mieć wystarczająco dużo czasu, by poświęcić go na ważne elementy życia.
Przykład projektu instalacji wentylacji , którego wykonanie wydawało się „mission impossible”
Kilka lat temu przyszedł do naszej firmy kierownik działu technicznego jednej z dużych warszawskich placów medycznych. Placówka ta miała olbrzymie środki przeznaczone na modernizację jednego z działów, w którym wykonywane były drogie usługi komercyjne i planowała dostosować jedną z dużych sal operacyjnych do wykonywania zabiegów. Pomieszczenie spełniało wszelkie wymogi poza jednym – nie posiadało sprawnej wentylacji.
Maszynownia, która znajdowała się bezpośrednio pod salą operacyjną była niewielka, a oczekiwania wobec centrali wentylacyjnej bardzo duże: wykonanie higieniczne, 10 wymian powietrza na godzinę, 3 stopnie filtracji w centrali plus filtry Hepa na nawiewnikach, odzysk ciepła, ogrzewanie, chłodzenie, osuszanie, nawilżanie, praca w oparciu o czujniki ciśnienia w kanałach i utrzymywanie stałej wydajności w całym cyklu pomiędzy wymianami filtrów.
Człowiek był bliski poddania się, bowiem byliśmy 3 firmą dostarczającą centrale klimatyzacyjne do której przyszedł i miał już niewielką nadzieję, że znajdzie rozwiązanie problemu.
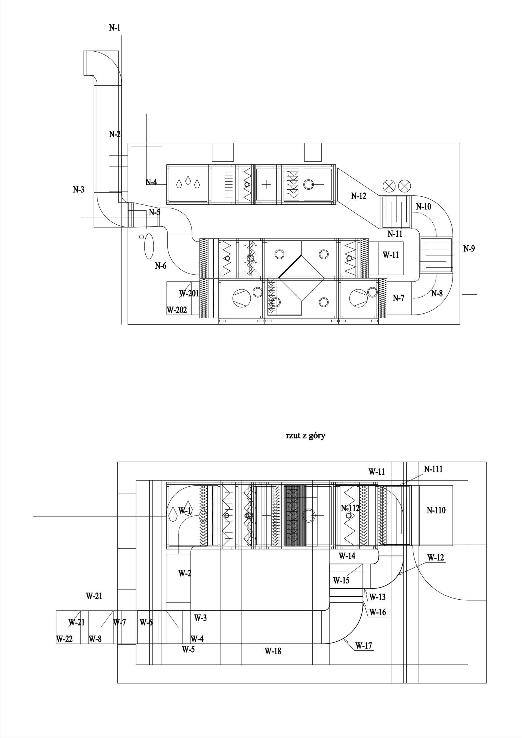
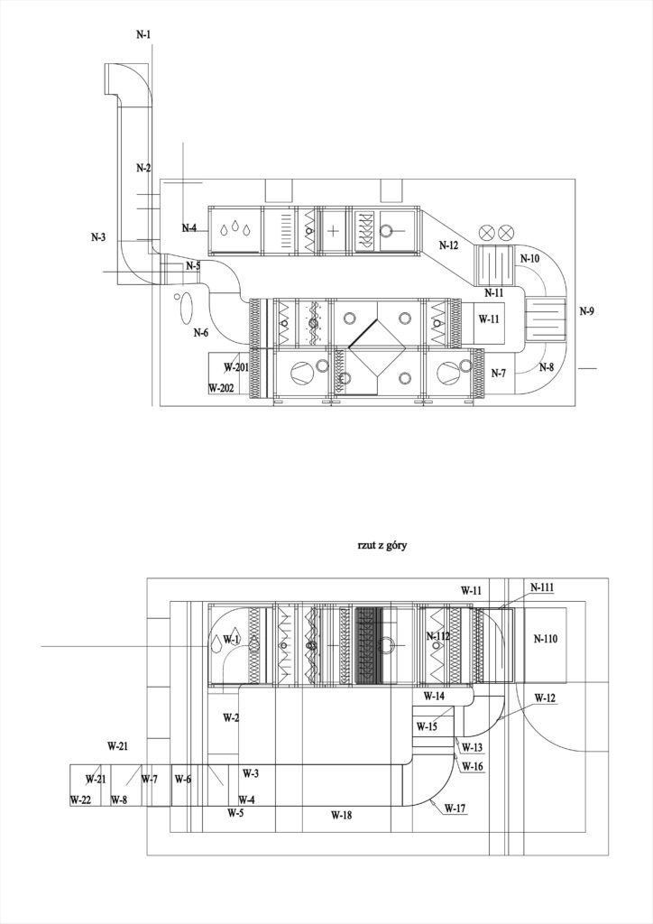
Sytuację z jaką mieliśmy do czynienia pokazuje poniższy rysunek, na którymi widzimy pomieszczenie maszynowni wraz elementami infrastruktury, których nie można było wyeliminować, jak przebiegające przez całe pomieszczenie i bynajmniej nie pod sufitem, czy przy podłodze: rurę ciepłowniczą oraz główne rury chłodnicze.
Po wykonaniu doboru centrali wentylacyjnej która spełniałaby kryteria sytuacja przedstawiała się w ten sposób jak na rysunku.

Centrala wentylacyjna „łamana”
Gdy podzielimy centralę wentylacyjną na całkiem odrębne sekcje, tak naprawdę po złożeniu w całość jeszcze ją wydłużymy, gdyż każda sekcja centrali będzie musiała zawierać profile końcowe, czyli 4-5 cm dodatkowych dla każdej sekcji – w porównaniu do centrali – monobloku. A nie o to nam przecież chodzi.
Jednym z rozwiązań problemów podobnych do przedstawionego, jest wykonanie tzw. centrali wentylacyjnej „łamanej”, tzn. takiej, która będzie podzielona na mniejsze monobloki lub też sekcje funkcjonalne w wstawionymi pomiędzy nimi kanałami wentylacyjnymi w ten sposób, aby dopasować ich rozmieszczenie do istniejącego pomieszczenia maszynowni.
Bardziej chodzi więc o taki podział, by możliwe było np. złamanie centrali w pomieszczeniu, ustawienie jednej części np. na posadzce, drugiej części pod sufitem, itp, i połączenie jej kanałami tak, aby ją do pomieszczenia zmieścić ze wszystkim funkcjami.
Centrala wentylacyjna łamana – studium przypadku
Maszynownia miała wymiary 5×3 m i wysokości 2,8 metra, gdzie została zmieszczona centrala klimatyzacyjna na przepływ Vn= 3000 m3/h i Vw= 2700 mw/h.
Budowa centrali wentylacyjnej wyglądała następująco:
Część nawiewna:
– filtr kasetowy M5,
– filtr elektrostatyczny F8,
– wymiennik krzyżowy o sprawności 75%,
– sekcja wentylatora z silnikiem EC,
– sekcja chłodnicy glikolowej 10-rzędowej
– sekcja nagrzewnicy wodnej,
– filtr dokładny F9
– sekcja nawilżania parowego ze stabilizatorem przepływu pary.
Część wywiewna:
– filtr kasetowy M5,
– wymiennik krzyżowy,
– sekcja wentylatora z silnikiem EC
W powyższym przypadku wystarczyło oddzielić układ ogrzewania, chłodzenia nawilżania i filtracji końcowej i te funkcje wykonać jako centralę podwieszaną.
Dokładną sytuację przedstawia poniższy fragment projektu końcowego.
Brak miejsca na wentylację – na jakie kompromisy możemy iść?
Gdy miejsca na wentylację jest naprawdę mało, trzeba iść na pewnego rodzaju kompromisy. Patrząc z punktu widzenia centrali klimatyzacyjnej takim kompromisem jest wyższa prędkość przepływu powietrza w centrali, krótsze kieszenie filtrów, lub w ogóle zastąpienie filtrów kieszeniowych kasetowymi jak to miało miejsce w pokazanym wyżej przypadku. Skutkiem ubocznym będzie konieczność częstszej wymiany filtrów, ale jednak funkcjonalność centrali pozostaje bez zmian. Granicą zwiększenia prędkości przepływu w centrali jest z kolei taki spadek ciśnienia na elementach wewnętrznych centrali, aby nadal zmieścić się w wartościach przewidzianych przez dyrektywę UE 1253/2014, nazywaną również dyrektywą Ekoprojekt 2018.
Kompromisem z punktu widzenia instalacji kanałów wentylacyjnych jest z kolei dopuszczenie wyższej prędkości przepływu powietrza w kanałach wentylacyjnych. Zbyt duża prędkość powietrza w kanałach wentylacyjnych z kolei jest często źródłem nadmiernej konsumpcji energii przez instalację wentylacji a także nadmiernego hałasu.
Trzeba więc i tutaj znaleźć tzw. złoty środek.
Zalecane prędkości przepływu powietrza w kanałach głównych to 4-8 m/s w instalacjach wentylacji komfortu, 8-12 m/s w instalacjach przemysłowych, a w odgałęzieniach odpowiednio 3-5 m/s i 5-8 m/s. Lepiej jednak z uwagi na hałas trzymać się dolnych granic. W centralach wentylacyjnych prędkości te są jeszcze mniejsze i w pustym przekroju centrali powinny wynosić ok 2 m/s z uwagi także na nadmierne spadki ciśnień ale również z uwagi na skuteczność odbioru ciepła od wymienników ciepła, która powyżej 3 m/s zaczyna już drastycznie spadać i centrala z prędkością powyżej 3,5 m/s w praktyce nie jest już w stanie spełnić wymagań dyrektywy Ekoprojekt w zakresie konsumpcji energii elektrycznej przez silniki wentylatorów.
Podsumowanie i wnioski
Aby wykonać dobry projekt wentylacji, z punktu widzenia dostawcy central wentylacyjnych należy pilnować zawsze 3 najważniejszych parametrów i tak nimi żonglować, by kompromis był jak najmniejszy a jedocześnie aby osiągnąć założenia projektowe, czyli:
– dostarczyć do pomieszczeń założoną ilość powietrza o określonej temperaturze,
– minimalizować nadmierny hałas, który może powstać zarówno w przypadku „wyżyłowanej” centrali, jak i zbyt małych przekrojów kanałów
– minimalizować konsumpcję energii elektrycznej i cieplnej.
Nie jest to zadanie łatwe, dlatego nasza firma posiada w ofercie 2 podstawowe typoszeregi central, które potocznie nazywamy „centralami niskimi” i „centralami wąskimi„, a także wiele pobocznych typoszeregów, jak np. „centrale kompaktowe„, których budowa umożliwia dopasowanie do jak najmniejszych pomieszczeń.
Jeśli napotykasz na problemy opisane w tym artykule zapraszam Cię do kontaktu z naszą firmą.


