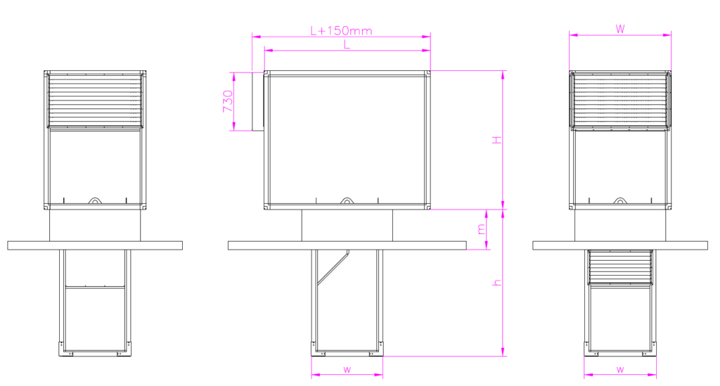
Dane zawarte w tabelce mają charakter poglądowy i nie stanowią oferty. Aby otrzymać szczegółową kartę techniczną urządzenia, prześlij zapytanie.